Just Listed

347 Oxley Ave, Margate

Offers Over $1,420,000

4 2 2 405 m2

SMART MODERN AND SUNNY WITH BAY VIEWS

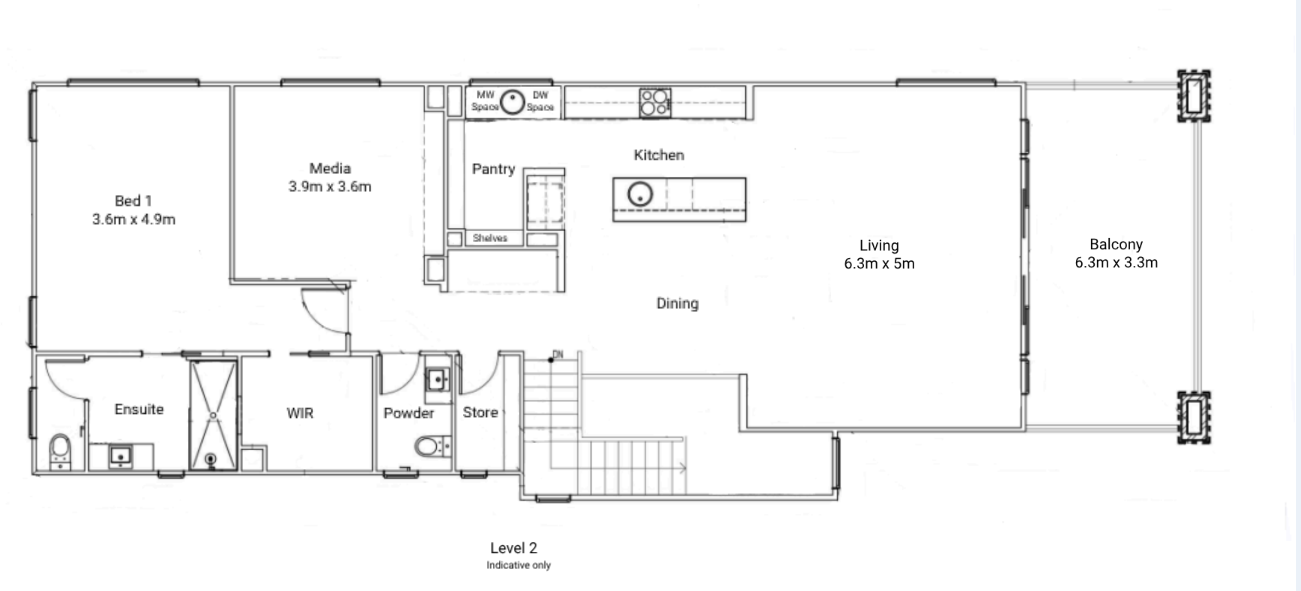
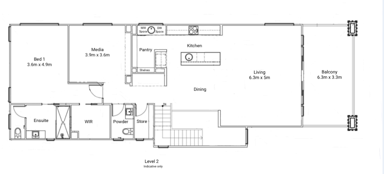
This well appointed home is perfect for the discerning buyer looking for quality and style. There is plenty to offer families with living and bedrooms over two levels, excellent options for entertaining and a convenient location with schools, transport and shopping in close proximity. To top it off the waterfront is within sight and beckoning you to enjoy leisurely walks, water sports of all kinds, outdoor dining options and relaxing in the cool breezes.  The home is chic and contemporary, awash with natural light and easy living with spacious bedrooms and generous living areas.

  • Elevated position capturing the beautiful bay breezes and providing a sweeping view
  • Ducted air conditioning with five zones
  • Three bedrooms with built in robes and ceiling fans
  • A master bedroom with walk in robe, ceiling fan, ensuite with large shower and a separate toilet
  • Study nook 
  • An expansive open plan area which flows to the front tiled entertainment area
  • A stunning kitchen with elegant lighting, large island bench, stone benchtops, integrated rangehood and a butler's pantry with sink and considerable storage
  • Separate lounge/ media room
  • Powder room
  • Walk in linen
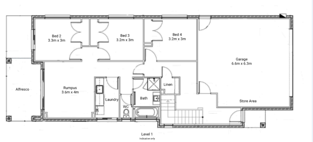
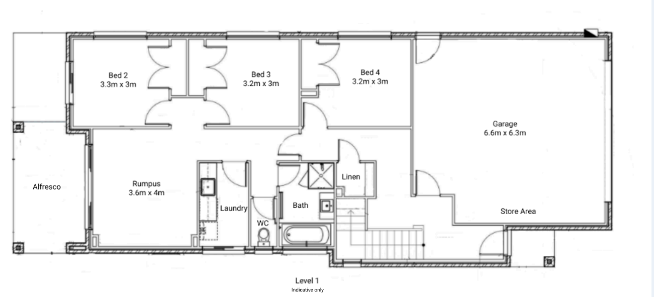
  • Family bathroom plus separate toilet
  • Rumpus room flowing to rear patio and garden
  • Built in laundry with access to clothes line
  • Double garage with remote access and internal entry

Details

Address 347 Oxley Ave, Margate
Price Offers Over $1,420,000
Property Type Residential
Property ID 2441
Category House
Land Area 405 m2

Share

Jan Jones photo

Jan Jones

0439 758 867