Sold

47 Haslewood Cres, Meridan Plains

SOLD for $525,000

4 2 2 450 m2

SUMMER LIVING’S EASY IN THIS 2 YEAR OLD “INTEGRALE” HOME

You’ll love coming home to this impressively optioned, perfectly positioned, 2 year old home located close to Schools, Parkland, Tavern, Major Shopping Centre and of course not too far from some of the Sunshine Coast’s best beaches and waterways.

.

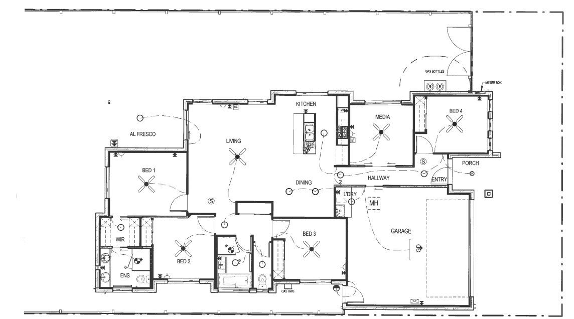
Major features include:

High Ceilings (2.5m) and 600x 600 gloss tiles throughout

4 bedrooms

2 bathrooms (Fully tiled ensuite with double vanity and essastone benchtops)

2 Living areas including media room

Striking kitchen with stainless steel appliances, plumbed fridge, essastone benchtops and island sink

Large covered entertainment area

Double gate side access to 450sqm fully fenced block

Epoxy flooring in garage

Beautifully presented, backs onto a park with free tennis court and is located in a highly sought after local 7 mins drive to the new uni, 2 mins drive to Meridan State College and 3 mins drive to Parklands Shopping Centre in a brand new estate just a short drive to beaches and cafe's life really is very special here......Circumstances have changed and the owners of this beautifully presented home regretfully have to move on -  Inspection is sure to please.

Details

Address 47 Haslewood Cres, Meridan Plains
Price SOLD for $525,000
Property Type Residential
Property ID 842
Category House
Land Area 450 m2

Share

Jeff Jones photo

Jeff Jones

0427 740 560